Гарантия 5 лет
Покажем объекты в работе
Проекты под любой бюджет
Мастера со стажем от 10 лет
Материалы со скидкой до -30%
Опыт 12 лет
Каркасные бани с отделкой под ключ с нашего производства в Луганске
Полностью готовая баня с отделкой, сантехникой и каменкой за 12-20 дней.
Рассчитайте стоимость строительства бани и получите скидку 10%
Популярные проекты бань
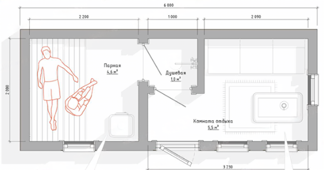
Барн с крыльцом 6х2,4
Во всех банях сделана внутренняя и наружная отделка, окна, двери, полки, каменка
Барн 6х2,4
Во всех банях сделана внутренняя и наружная отделка, окна, двери, полки, каменка
Сканди 5х2,4
Во всех банях сделана внутренняя и наружная отделка, окна, двери, полки, каменка
Барн дачный 4х2,4
Во всех банях сделана внутренняя и наружная отделка, окна, двери, полки, каменка
Барн 5х2,4
Во всех банях сделана внутренняя и наружная отделка, окна, двери, полки, каменка
Барн 4х2,4
Во всех банях сделана внутренняя и наружная отделка, окна, двери, полки, каменка
Сканди 4х2,4
Во всех банях сделана внутренняя и наружная отделка, окна, двери, полки, каменка
Барн 4х2,4
Во всех банях сделана внутренняя и наружная отделка, окна, двери, полки, каменка
Получите наш каталог современных популярных проектов в WhatsApp
Мы отправим вам PDF файл с наиболее популярными проектами в WhatsApp